时尚别墅外观效果图-效果别墅装修
2024-11-08 本站作者 【 字体:大 中 小 】

返乡建房面临的挑战之一是新批宅基地面积有限。为了在有限的土地上扩大居住空间,往往需要考虑增加建筑层数。
但是,某些区域有高度限制或楼层限制。在这种情况下,巧妙设计夹层就成为提高空间利用效率的有效解决方案!
今天,我特意为大家精选了三张夹层设计的乡村别墅图纸,专门为小面积宅基地量身打造。
户型一:

用地面积:17.94m×12.5m
面积:153㎡
建筑面积:189.27㎡
建筑高度:4.2m
建筑结构:框架结构
建筑情况:3房3厅2卫1厨房1门厅1客厅1主房1庭院1露台

室内庭院位于一层,不仅作为室内外的过渡,而且天井的设计也为室内提供了良好的采光和通风。

夹层设计增加了房屋的使用面积,且不会过高。
有2个大储藏室,存放一些不常用的物品非常方便。农村储存粮食也很实用,不用担心粮食受潮。

户型二:

面积尺寸:8m×12m
面积:96㎡
建筑面积:343.83㎡
建筑高度:13.7m
建筑结构:框架结构
建筑情况:6房1餐厅5卫1厨房1客厅3客厅1露台1阳台

这是一栋新潮、时尚的现代别墅。其简洁的造型、经典的黑白配色以及透明的玻璃元素,让整个别墅看起来充满质感,别具一格。

入口处设置走廊,与客厅相连,并设计了开放式空间,延伸了视野,无论是休闲、娱乐还是待客都更加舒适。
餐厅和厨房一体化设计,节省室内空间。北侧设厨房,可作为老人房间。

夹层面积不小,并设有茶室和棋牌室,是休闲娱乐的绝佳场所。

二楼南侧设有豪华套房,配有书房、浴室、阳台,给业主带来五星级酒店般的居住体验。
北侧设置卧室和客厅,增强房屋的接待能力。

二楼的布局与三楼类似,只是将主卧室的功能区改为了大型公共露台,供家人纳凉、赏景。
设置夹层,不仅起到隔热作用,还增加了室内使用面积。

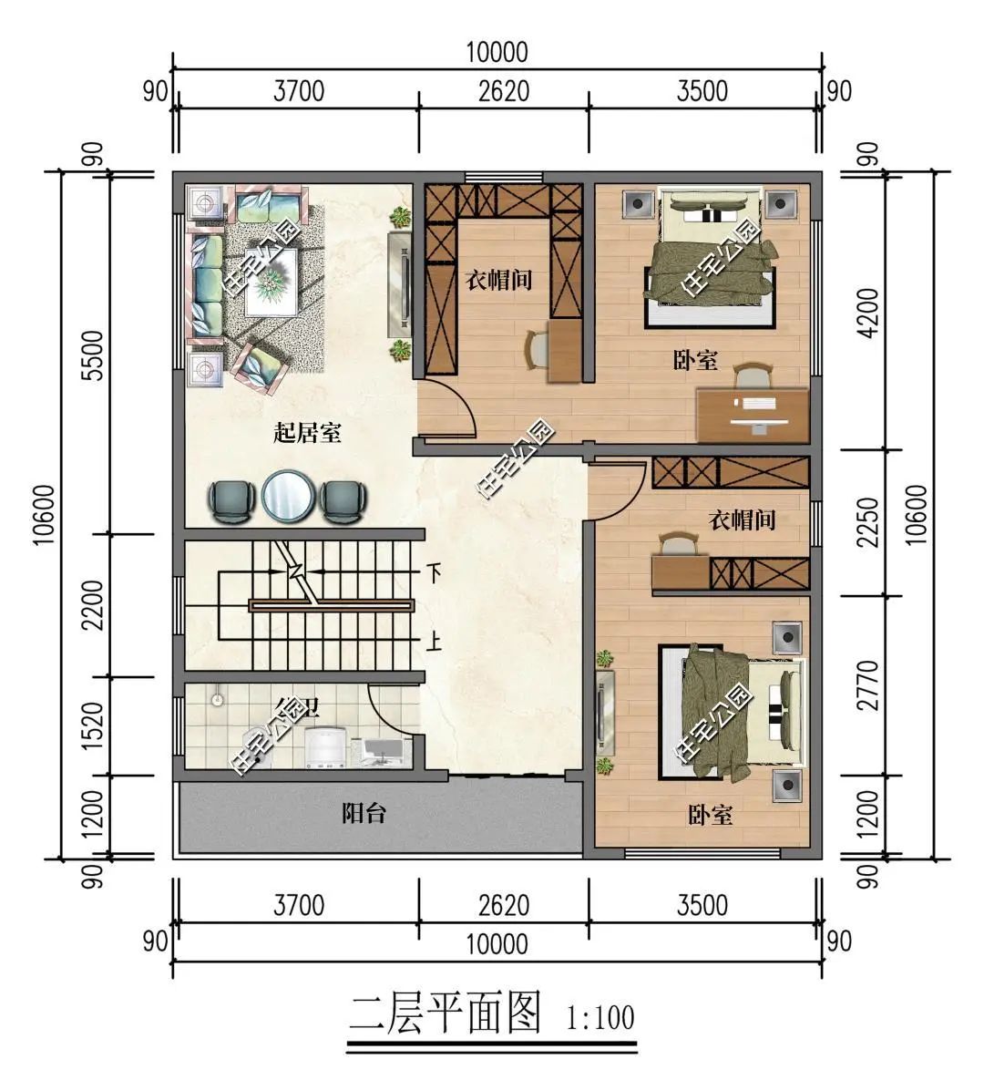
户型三:

面积尺寸:10m×10.6m
面积:98.42㎡
建筑面积:414.06㎡
建筑高度:14.8m
建筑结构:砖混结构
建筑情况:5间卧室、2间客厅、3间浴室、1间厨房、1个入口、2间客厅、3间衣帽间、1间视听室、2个阳台、1个车库、1个露台

清新明亮的色彩,结合简约时尚的外观,打造出这座优雅而现代的别墅。简洁的外观造型和平屋顶设计也降低了施工难度和建筑预算,非常适合农村地区。

螺旋楼梯与客厅的空地结合在一起,层次感立刻提升。西侧还设有车库,方便您在家停放车辆。一间卧室位于北侧,远离客厅区域,因此家人可以休息而不会受到打扰。

夹层区域设置厨房,与一、二层区域分开,尽量减少油烟对室内其他区域的影响。

二楼设有两间套房,提升家人的居住体验。还设置了客厅,供休闲之用。

三楼设置家庭影音室和棋牌区,丰富家人的精神娱乐生活。同时还设置了两间卧室,增强接待能力。
顶楼区域打造了一个大型观景露台,可以放置桌椅,种植自己喜欢的花草,丰富生活情趣。

夹层的设计还是很不错的。既保留了客厅宏大的开放空间,又提高了空间利用率。非常适合宅基地紧凑的农村建设。你怎么认为?
猜你喜欢
维生素e加芦荟胶敷脸有什么功效 维生素e和芦荟胶混合敷脸的作用
7
时尚小女孩漫画图片-漫画时尚女孩图片头像
63
中赫时尚花艺-时尚中赫花艺怎么样
110
时尚旋转小火锅店加盟-旋转小火锅店视频
118
时尚潮人-时尚潮人是什么意思
80
时尚潮人-时尚潮人show
182
时尚街拍杂志-杂志街拍时尚图片
186
自然堂面膜敷完要洗脸吗 敷完自然堂面膜要洗脸吗
18
易建联时尚最体育-体育新闻易建联
90
深圳时尚货架-深圳市时尚货架有限公司
77 