小户型 装修 时尚-户型装修时尚小屋效果图
2024-09-18 本站作者 【 字体:大 中 小 】

说到简约,很多人就联想到简单,进而进一步联想到沉闷、单调,于是认为简约设计必然逃脱无趣的魔咒。其实,简约同样可以精致,不用浓妆艳抹,依然可以很美。现代简约风格的装修一定要务实,不能盲目跟风而不考虑其他因素。

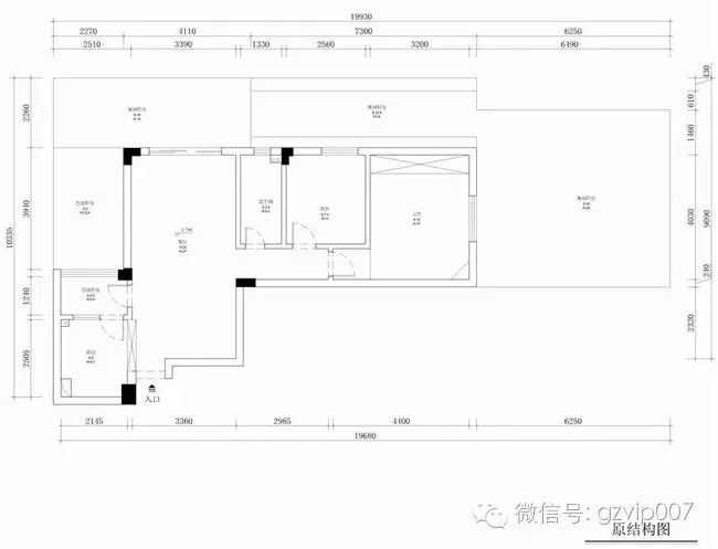
第一部分:东晖花园-65平米现代简约
设计理念:小两居室设计,房子方正,布局没有变化,根据业主的生活习惯,希望客厅空间大一点,同时满足吧台空间,所以把厨房做成开放式,既满足了客户的需求,又满足了吧台空间,空间和设计都和客户达成了一致。

楼层平面图
进入亮点分析:

客厅装修效果图

餐厅装修效果图
亮点:客厅里随处可见现代简约的中式风格元素,电视背景墙上还点缀着吊灯,给人一种稳重、静谧的感觉,同时较浅的色调给人一种轻松自然的感觉,家具凸显了现代风格。
装饰提示:
Tip1:本餐厅采用全白配色,提升了餐厅的通透感和明亮度,在旁边的柜子上贴上这款简约中式墙贴,为餐厅带来自然的氛围,吊灯增加了房间的华丽感。
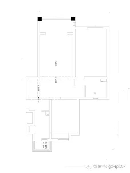
第二部分:美林海岸花园-63.86平米现代简约
设计理念:业主是一个受西方文化影响较大的人,相比于国内的风格,他更喜欢国外的风格,尤其是欧美国家的装饰风格,奢华、大气、高贵、自由奔放,空间宽敞。

楼层平面图
进入亮点分析:

客厅装修效果图

客厅装修效果图

卧室装修效果图
亮点分析:客厅整体配色采用暖色调,给人一种很温馨的感觉,回到家坐在舒适的布艺沙发上,心情瞬间就放松下来,再加上射灯散发出的暖光和简约的照片墙,一股温馨的感觉瞬间涌上心头。
装饰提示:
Tip 1:卧室背景墙采用鲜艳的玫红色花纹,让卧室氛围清新而稳重;飘窗也经过巧妙改造,让空间尽可能合理,既有和谐之美,又有变化之美。
第三部分:新市紫荆花园-61平米现代简约
设计理念:小空间的设计主要考虑功能的设置和色彩风格的和谐统一,除了审美的享受,主人还能在空间中找到归属感,如果你爱上了回家,那么你的设计才是真正成功的。

楼层平面图
进入亮点分析:

客厅装修效果图

客厅装修效果图

卧室装修效果图
亮点:入户墙面采用定制半高收纳柜,最大程度满足业主收纳需求,现代时尚的照片墙让空间充满时尚气息,客厅定制半高电视背景墙与吧台融为一体,流线型的线条让空间更加动感有活力。
装饰提示:
Tip1:卧室使用了大量绿色作为主色调,但是空间却不会显得单调,因为床上用品是白色的,窗帘是棕色的,这样的绿色在卧室中呈现出了明显的层次感、色彩搭配,让卧室的视觉焦点凸显出来的同时,又不失古典感。
编辑总结:对于忙碌于快节奏、高频率、满负荷生活的现代人而言,现代简约风格越来越受到青睐,简单舒适的环境足以消除一天的烦恼,没有过多复杂的设计,以简洁的造型、纯粹的质感、精细的工艺为特点,为现代人呈现更加温馨舒适的生活环境。
【创意家装工作坊】
● 微信公众号:【gzvip007】
▲关注微信公众号,回复数字“2”,即可免费领取价值6000元装潢盒一个。

猜你喜欢
普乐美水龙头:时尚设计,水龙头也疯狂-普乐美水龙头售后服务
158
游戏时尚都市手机版-时尚都市内购版
73
育儿妈妈时尚宝宝-宝妈育儿宝典
205
2024香港时尚购物展-香港购物节
87
小时尚-时尚小熊
169
买时尚衣服-想买时尚衣服的输什么关键词
114
眼部打底用在粉底后吗 眼部打底用在哪个步骤
17
2024年时尚礼品盒-新款礼品盒
142
我的绅士时尚 09-绅士的时尚
82
时尚造型艺术中心-造型设计有限公司
75 